Ricerca

5 locali in Vendita a San Bartolomeo al Mare

120 mq 6 Locali 3 Camere 1 Bagni

Classe energetica

G
Codice: 285SanBart! € 285.000

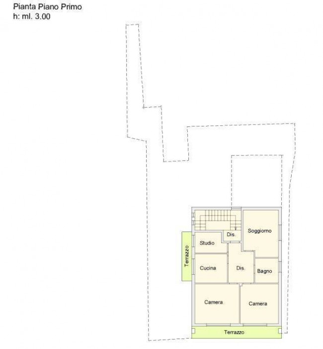
San Bartolomeo al Mare, posizione centrale a soli 100 metri dal mare. L'immobile in questione è un ampio appartamento di cinque locali situato al primo ed ultimo piano di unca casa indipendente composta da tre unità abitative.

Con una superficie totale di 120 metri quadrati, questo appartamento offre ampi spazi abitativi.

Gli interni sono composti di cui tre camere da letto, studio, soggiorno, cucina abitabile, bagno e due terrazzi.

L'immobile offre un ambiente accogliente pronto per essere abitato senza alcuna spesa condominiale.

Grazie alla sua posizione strategica, l'appartamento gode di una vista aperta sulla città in una zona tranquilla e residenziale.

Ideale per chi cerca una soluzione abitativa comoda e spaziosa in una delle località più belle della Riviera Ligure.

Informazioni immobile
Codice: 285SanBart!
Contratto: Vendita
Tipologia: 5 locali
Regione: Liguria
Provincia: Imperia
Comune: San Bartolomeo al Mare
Prezzo: € 285.000
Totale mq: 120 mq
Camere: 3
Bagni: 1
Locali: 6
Stato conservazione: Buono
Piano: 1
Piani totali: 2
Riscaldamento: Autonomo
Infissi: doppi
Appartamenti Totali: 1
Età costruzione: 1970
Disponibile: Si
Balconi: Presente
Giardino: Comune
Cucina: Abitabile
Nelle vicinanze
Palestre
Centri Benessere
Campi da Calcio
Complessi Sportivi
Campi da Tennis
Piste Ciclabili
Parchi Giochi
Stazione Ferroviaria
Trasporti Pubblici
Asilo
Scuole Elementari
Scuole Medie
Scuole Superiori
Bar
Uffici postali
Centri commerciali
Uffici comunali

Mappa immobile

Ultimo aggiornamento 03-10-2025