Ricerca

2 locali in Vendita a San Bartolomeo al Mare

61 mq 2 Locali 1 Camere 1 Bagni

Classe energetica

G
Codice: BiloSanBartG158 € 158.000

Grande Bilocale con Giardino - 300 m dalle Spiagge

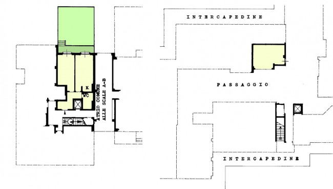
Nel cuore di San Bartolomeo al Mare, in elegante contesto condominiale di recente ristrutturazione sito a soli 300 metri in piano dalle spiagge, dal Lungomare delle Nazioni e nelle immediate vicinanze di ogni servizio, questo ampio bilocale ha una superficie interna di oltre 50 mq, ed è composto da : disimpegno con armadiatura a muro, soggiorno con cucina all'americana, profonda camera matrimoniale (capace di ospitare fino a due letti a due piazze), bagno cieco con box doccia, terrazzo e, vera rarità, un giardino privato.

Le aree esterne si articolano come anticipato in un loggiato ed un giardino dalle forme regolari, collegati l'un l'altro da appena due gradini e accessibili da entrambi i locali interni, per un totale di 30 mq.

Esposizione pieno Ovest, condizioni interne originali e in ottimo stato di manutenzione generale.
Facciata condominiale da poco rinnovata nella sua interezza, riscaldamento centralizzato a metano e spese condominiali ordinarie inferiori ai 1.000 euro l'anno.
Gli arredi presenti in foto sono compresi nella Vendita, rendendo la soluzione abitabile a effetti immediati.

Completa la proprietà, con una richiesta di 28.000 euro, un comodo box auto nel primo seminterrato dello stabile.

Informazioni immobile
Codice: BiloSanBartG158
Contratto: Vendita
Tipologia: 2 locali
Regione: Liguria
Provincia: Imperia
Comune: San Bartolomeo al Mare
Prezzo: € 158.000
Totale mq: 61 mq
Camere: 1
Bagni: 1
Locali: 2
Stato conservazione: Buono
Piano: Piano rialzato
Piani totali: 4
Riscaldamento: Centralizzato
Ascensore: Si
Infissi: Alluminio / Vetro Singolo
Età costruzione: 1980
Stato attuale: Libero al rogito
Spese condominio: € 80
Disponibile: Si
Esposizione: Ovest
Balconi: Presente
Terrazzo: Presente
Giardino: Privato, 30 mq
Distanza mare: 300 mt.
Cucina: A vista
Box: Singolo, 20 mq
Posizione: Lungomare
Nelle vicinanze
Palestre
Centri Benessere
Campi da Calcio
Complessi Sportivi
Campi da Tennis
Piste Ciclabili
Parchi Giochi
Stazione Ferroviaria
Trasporti Pubblici
Asilo
Scuole Elementari
Scuole Medie
Scuole Superiori
Bar
Uffici postali
Centri commerciali
Uffici comunali

Mappa immobile

Ultimo aggiornamento 14-10-2025