Ricerca

6 locali in Vendita a Andora

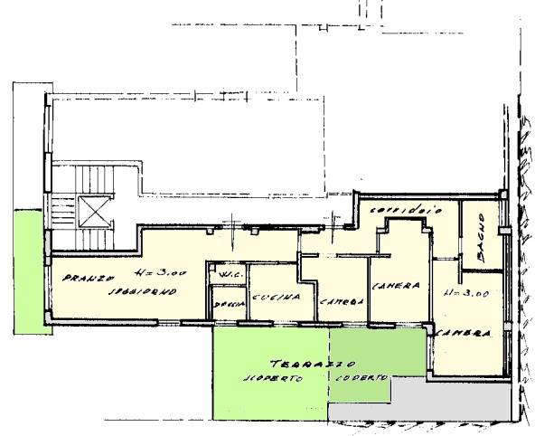
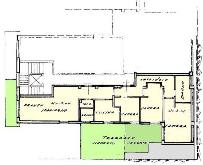
110 mq 6 Locali 3 Camere 2 Bagni

Classe energetica

G
Codice: quadricapomele! € 445.000

Andora - Nel contesto di Capo Mele, a circa 1 km dalle spiagge e 2 km da Laigueglia,

Ampio e luminoso appartamento dal panorama mozzafiato, sito al secondo piano di un edificio dotato di ascensore con accesso diretto a piscina e spiaggia sottostante.

L'immobile è composto da ampio soggiorno, cucina abitabile, tre camere da letto di cui una matrimoniale, bagno principale con doccia e secondo bagno finestrato con box doccia
Ampio terrazzo e balcone con vista panoramica sul mare, ideali per godersi momenti di relax all'aria aperta.

Tutti gli impianti sono autonomi.

L'esposizione a sud-est garantisce una piacevole luminosità all'interno dell'abitazione.

Le spese condominiali ammontano a circa 200 euro al mese

Completano la proprietà due posti auto scoperti

Soluzione perfetta per chi desidera una casa per le vacanze spaziosa e pronta all'uso in un contesto esclusivo.

Informazioni immobile
Codice: quadricapomele!
Contratto: Vendita
Tipologia: 6 locali
Regione: Liguria
Provincia: Savona
Comune: Andora
Prezzo: € 445.000
Totale mq: 110 mq
Camere: 3
Bagni: 2
Locali: 6
Stato conservazione: Buono
Piano: 2
Piani totali: 5
Riscaldamento: Autonomo
Posto auto: Scoperto
Ascensore: Si
Infissi: pvc
Età costruzione: 1980
Stato attuale: Libero al rogito
Spese condominio: € 200
Disponibile: Si
Esposizione: sud est
Balconi: Presente
Terrazzo: Presente
Distanza mare: 30 mt.
Cucina: Abitabile
Posizione: Lungomare

Mappa immobile

Ultimo aggiornamento 16-10-2025