Ricerca

2 locali in Vendita a Diano Marina

55 mq 2 Locali 1 Camere 1 Bagni

Classe energetica

G
Codice: BiloJardin175 € 175.000

Diano Marina, a pochi passi dal centro e dal mare

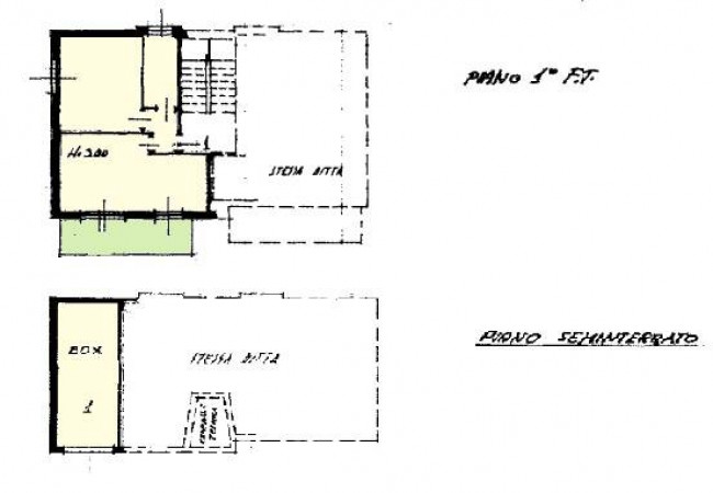
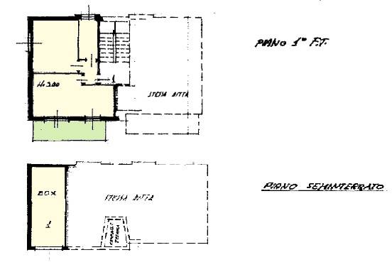
Bilocale con giardino privato al piano rialzato di una piccola palazzina ben curata.

L'immobile è caratterizzato da ingresso su disimpegno, soggiorno con angolo cottura con accesso al balcone, camera da letto matrimoniale e bagno finestrato.

Un valore aggiunto di questa proprietà è sicuramente l'ampio giardino privato, perfetto per godersi una colazione al sole o per rilassarsi la sera dopo una giornata in spiaggia.

L'immobile si trova in una zona residenziale tranquilla, ma allo stesso tempo comoda per raggiungere a piedi tutti i servizi principali, come negozi, ristoranti e spiagge. Inoltre, essendo situato al piano rialzato, risulta essere ideale anche per le persone anziane o con difficoltà motorie.

Tutti gli impianti sono autonomi.

Possibilità di acquisto di un comodo box auto sottostante l'immobile.

Soluzione abitativa funzionale e confortevole, in una delle località più belle della Riviera Ligure.
Perfetto per chi vuole godersi la tranquillità e la bellezza del mare, senza rinunciare alle comodità della vita quotidiana.

Informazioni immobile
Codice: BiloJardin175
Contratto: Vendita
Tipologia: 2 locali
Regione: Liguria
Provincia: Imperia
Comune: Diano Marina
Prezzo: € 175.000
Totale mq: 55 mq
Camere: 1
Bagni: 1
Locali: 2
Stato conservazione: Buono
Piano: Piano rialzato
Piani totali: 2
Infissi: Doppio Vetro / PVC
Appartamenti Totali: 4
Età costruzione: 1975
Stato attuale: Libero al rogito
Disponibile: Si
Balconi: Presente
Giardino: Privato
Distanza mare: 800 mt.
Cucina: Angolo cottura
Posizione: Centrale
Nelle vicinanze
Palestre
Centri Benessere
Campi da Calcio
Complessi Sportivi
Campi da Tennis
Piste Ciclabili
Parchi Giochi
Stazione Ferroviaria
Trasporti Pubblici
Asilo
Scuole Elementari
Scuole Medie
Scuole Superiori
Bar
Uffici postali
Centri commerciali
Uffici comunali

Mappa immobile

Ultimo aggiornamento 16-10-2025