2 locali in Vendita a Cervo
Classe energetica
G
                    
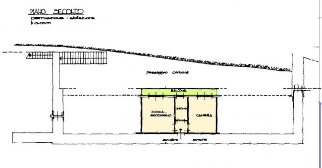
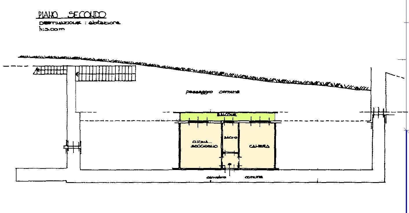
                Cervo, Capomimosa. Appartamento sito al secondo ed ultimo piano di palazzina ben curata a cinquanta metri dal mare. L'immobile è caratterizzato da stanze ampie e luminose. Internamente è composto da ingresso su disimpegno, soggiorno con cucina a vista avente sfogo su ampio balcone, camera da letto matrimoniale e bagno finestrato.
Completano l'immobile una porzione di lastrico solare fronte mare di 50 metri quadrati, un posto auto, entrambi ad uso esclusivo dell'appartamento e una cantina.
                Informazioni immobile
                
                                    
            
        Codice: bilo.cervo148
                                        Contratto: Vendita
                                        Tipologia: 2 locali
                                        Regione: Liguria
                                        Provincia: Imperia
                                        Comune: Cervo
                                        Prezzo: € 148.000
                                        Totale mq: 50 mq
                                        Camere: 1
                                        Bagni: 1
                                        Locali: 2
                                        Stato conservazione: Buono
                                            Piano: 2
                                                Piani totali: 2
                                                Riscaldamento: Autonomo
                                                Posto auto: Scoperto
                                                Infissi: Doppi Vetri / PVC
                                                Stato attuale: Libero al rogito
                                                Spese condominio: € 40
                                                Disponibile: Si
                                                Balconi: Presente
                                                Distanza mare: 50 mt.
                                                Cucina: A vista
                                                Posizione: Semicentrale
                                        
            
                Nelle vicinanze
                
                                    
            
        Palestre
                                    Centri Benessere
                                    Campi da Calcio
                                    Complessi Sportivi
                                    Campi da Tennis
                                    Piste Ciclabili
                                    Parchi Giochi
                                    Stazione Ferroviaria
                                    Trasporti Pubblici
                                    Asilo
                                    Scuole Elementari
                                    Scuole Medie
                                    Scuole Superiori
                                    Bar
                                    Uffici postali
                                    Centri commerciali
                                    Uffici comunali
                                
            Mappa immobile
Condividi
                
                
                
                
                            
            Ultimo aggiornamento 24-10-2025
 
            
























