3 locali in Vendita a Diano Marina
Classe energetica
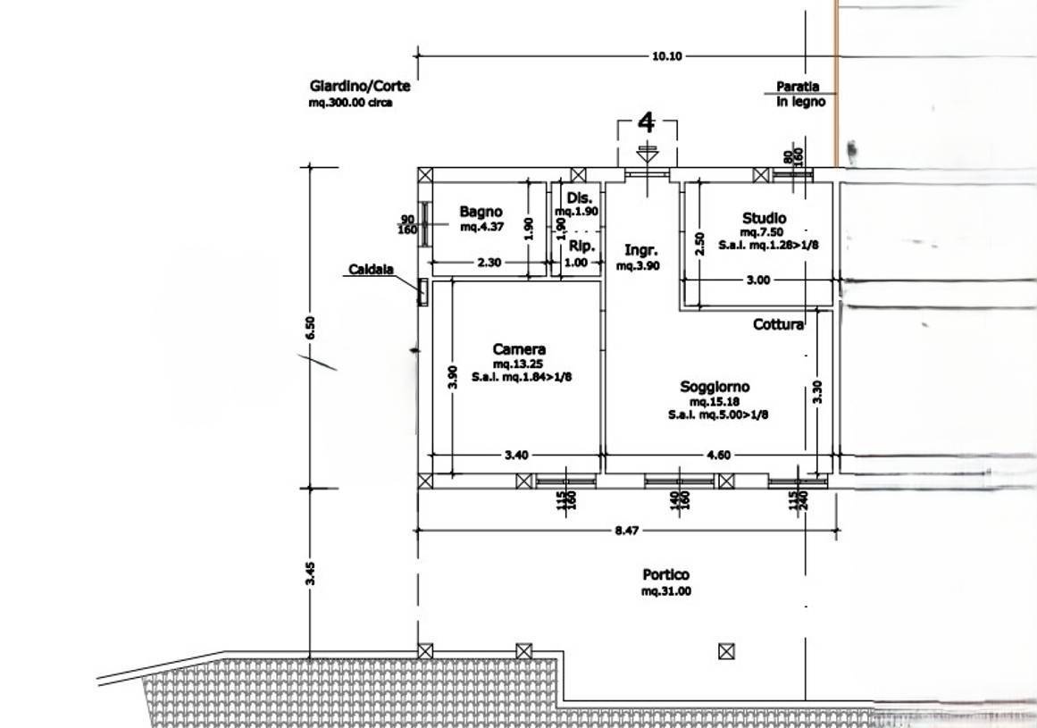
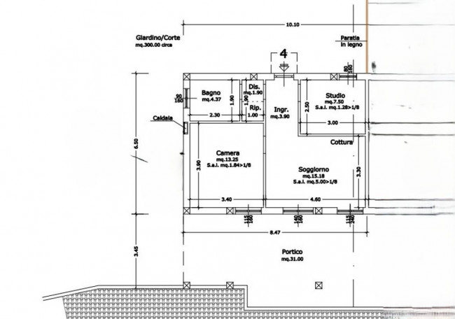
Diano Marina - Appartamento trilocale in zona tranquilla a pochi minuti dal mare.
Ampio trilocale composto da un accogliente soggiorno con cucina a vista da cui si accede al portico, una camera matrimoniale, una cameretta e un bagno finestrato.
Completa la proprietà un grande portico, una terrazza, ideali per godere di momenti di relax all'aria aperta, e un giardino privato dove trascorrere piacevoli momenti.
Lo stato di conservazione è buono e gli infissi sono in doppi vetri e in PVC, garantendo un'ottima isolamento termico e acustico.
Zona tranquilla e silenziosa ma comoda a tutti i servizi e al mare. Ideale per chi necessita di spazi ampi senza rinunciare alla comodità del centro.
Il riscaldamento è autonomo con combustibile GPL.
Mappa immobile
Ultimo aggiornamento 30-10-2025
 
            






















