Ricerca

3 locali in Vendita a Diano Marina

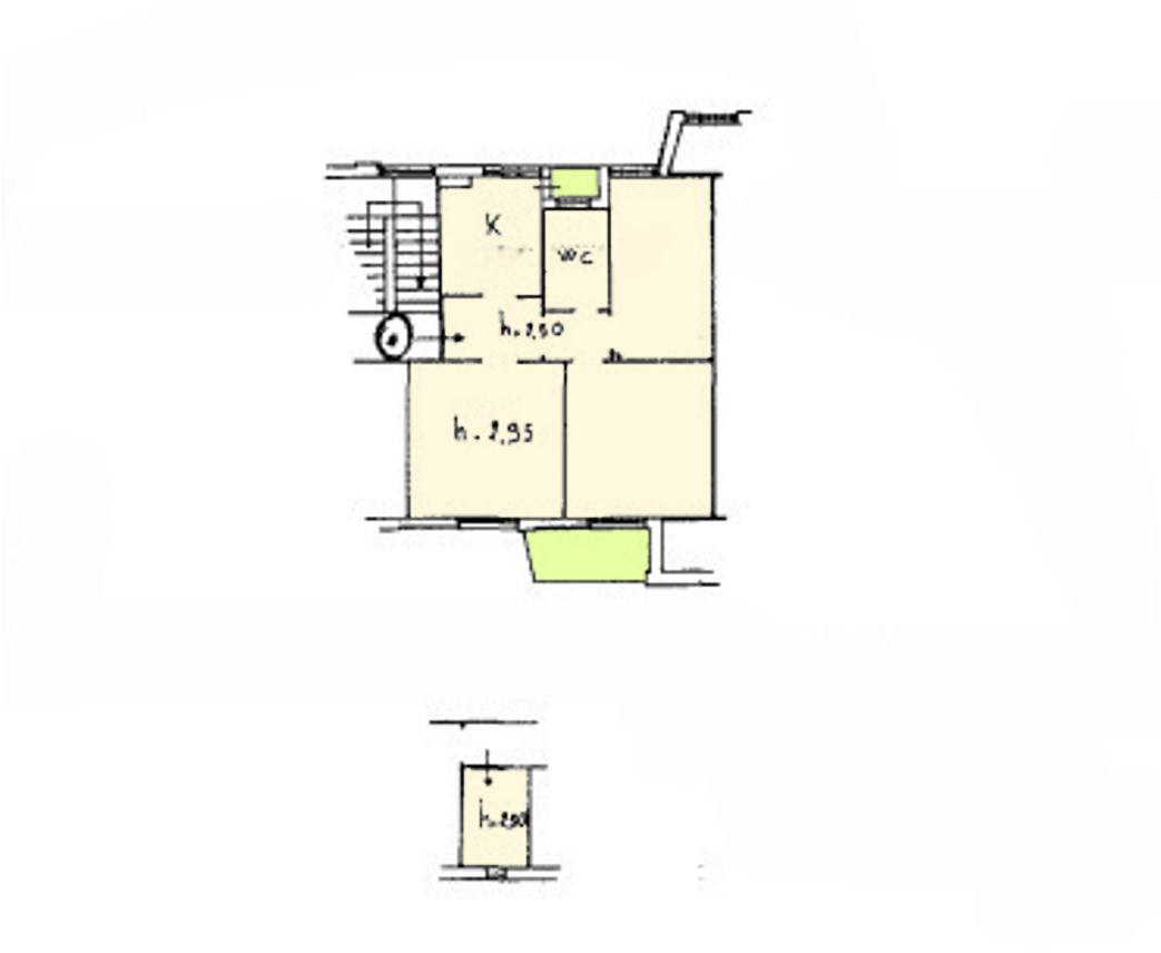
68 mq 4 Locali 2 Camere 1 Bagni

Classe energetica

G
Codice: TriloMare218 € 218.000

Diano Marina - A soli 50 metri dal mare luminoso e spazioso appartamento di quattro locali.
Situato al secondo piano di una palazzina, l'immobile si presenta in ottime condizioni e si trova in una zona tranquilla e ben servita.
L'appartamento è composto da ingresso su corridoio, cucina abitabile, un luminoso soggiorno, due camere e un bagno finestrato.
L'appartamento è dotato di un balcone, ideale per godersi momenti di relax all'aperto e di una cantina per riporre oggetti di uso meno frequente.
Il riscaldamento è autonomo.
Inoltre, l'immobile è in ottime condizioni di conservazione, grazie anche alle costanti manutenzioni effettuate nel corso degli anni.
Questo appartamento rappresenta una soluzione ideale per chi cerca una casa spaziosa, luminosa e pronta per essere abitata, in una zona residenziale comoda e ben servita.

Informazioni immobile
Codice: TriloMare218
Contratto: Vendita
Tipologia: 3 locali
Regione: Liguria
Provincia: Imperia
Comune: Diano Marina
Prezzo: € 218.000
Totale mq: 68 mq
Camere: 2
Bagni: 1
Locali: 4
Stato conservazione: Buono
Piano: 2
Piani totali: 3
Riscaldamento: Autonomo
Infissi: Vetro
Età costruzione: 1970
Stato attuale: Libero al rogito
Spese condominio: € 50
Disponibile: Si
Balconi: Presente
Distanza mare: 50 mt.
Cucina: Abitabile
Posizione: Centrale
Nelle vicinanze
Palestre
Centri Benessere
Campi da Calcio
Complessi Sportivi
Campi da Tennis
Piste Ciclabili
Parchi Giochi
Stazione Ferroviaria
Trasporti Pubblici
Asilo
Scuole Elementari
Scuole Medie
Scuole Superiori
Bar
Uffici postali
Centri commerciali
Uffici comunali

Mappa immobile

Ultimo aggiornamento 01-11-2025