Ricerca

3 locali in Vendita a San Bartolomeo al Mare

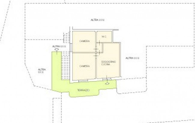
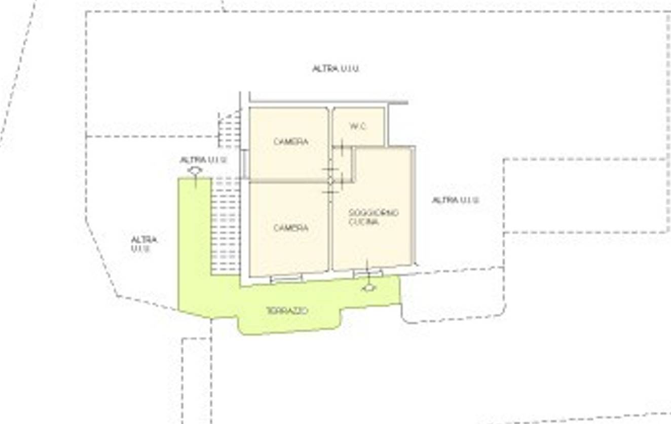
56 mq 3 Locali 2 Camere 1 Bagni

Classe energetica

G
Codice: Pairola188. € 188.000

San Bartolomeo al Mare Frazione Pairola.Complesso residenziale di recente costruzione che si trova a circa due chilometri e cinquecento metri dal mare.
Trilocale composto da soggiorno con cucina a vista, due camere da letto e un bagno con box doccia.

L'arredamento è moderno e ben curato, con parquet di ulivo in quasi tutto l'immobile.

Infissi in doppio vetro e finestre in alluminio che garantiscono una buona insonorizzazione e un ottimo isolamento termico.

L'esposizione sud garantisce molta luce naturale durante tutto il giorno, rendendo l'appartamento ancora più accogliente e luminoso.

Una delle caratteristiche più apprezzate di questo appartamento è il terrazzo, ideale per godersi il sole durante i mesi estivi.

Inoltre, è presente anche una cantina, ideale per riporre biciclette, attrezzature sportive o altri oggetti.

Completa la proprietà un comodo posto auto sottostante all'immobile.

Il riscaldamento è autonomo e utilizza il GPL come combustibile.

Comodo servizio navetta che parte dal complesso fino alle spiagge di San Bartolomeo al Mare nei mesi estivi.

In sintesi, questo 3 locali in Vendita a San Bartolomeo al Mare, in zona Pairola, è una soluzione ideale per coloro che cercano una casa moderna,
confortevole, con spazi ben organizzati e in una posizione comoda.

Informazioni immobile
Codice: Pairola188.
Contratto: Vendita
Tipologia: 3 locali
Regione: Liguria
Provincia: Imperia
Comune: San Bartolomeo al Mare
Prezzo: € 188.000
Totale mq: 56 mq
Camere: 2
Bagni: 1
Locali: 3
Piano: 2
Piani totali: 3
Riscaldamento: Autonomo
Infissi: Doppio Vetro / alluminio
Età costruzione: 2005
Stato attuale: Libero al rogito
Spese condominio: € 35
Disponibile: Si
Esposizione: Sud
Terrazzo: Presente
Distanza mare: 2.500 mt.
Cucina: A vista
Posizione: Semicentrale
Nelle vicinanze
Palestre
Centri Benessere
Campi da Calcio
Complessi Sportivi
Campi da Tennis
Piste Ciclabili
Parchi Giochi
Stazione Ferroviaria
Trasporti Pubblici
Asilo
Scuole Elementari
Scuole Medie
Scuole Superiori
Bar
Uffici postali
Centri commerciali
Uffici comunali

Mappa immobile

Ultimo aggiornamento 22-11-2025