Ricerca

Casa indipendente in Vendita a San Bartolomeo al Mare

250 mq 5 Locali 3 Camere 1 Bagni

Classe energetica

G
Codice: san.bart375 € 375.000

In Vendita a San Bartolomeo al Mare, si trova questa Casa indipendente, ideale per chi desidera una soluzione abitativa spaziosa e confortevole in pieno centro a soli 80 metri dal mare.

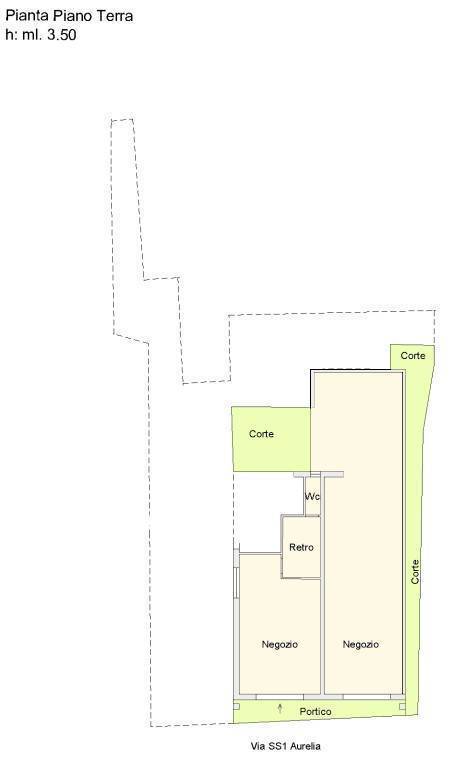
La casa si estende su una superficie totale di 250 metri quadrati disposta su due piani e cosi suddivisi: al piano primo appartamento di 5 locali, tra cui 3 camere da letto e un bagno e balconata;

al piano terra è composta da due locali ad uso commerciale, un box auto doppio, posti auto e corte privata.

L'impianto di riscaldamento funziona a metano e dispone di radiatori o pannelli radianti, per garantire un clima sempre caldo e accogliente.

Lo stato di conservazione della casa è buono, grazie anche agli infissi e alle finestre doppi, che proteggono dagli agenti atmosferici e dai rumori esterni.

L'esposizione a sud permette di godere di un'ottima illuminazione naturale durante tutto il giorno.

Inoltre, la casa è dotata di un balconi ed ampi spazie esterni ideali per momenti di relax all'aria aperta.

Una corte privata circonda l'abitazione, perfetto per godersi la natura e organizzare pranzi e cene all'aperto.

Completa la proprietà un doppio box auto, un posto auto scoperto e la presenza di una cantina e di un magazzino, utili per riporre gli oggetti di uso quotidiano.

Il riscaldamento è autonomo e funziona a metano, per garantire un risparmio energetico e una maggiore autonomia.

Non lasciarti sfuggire l'opportunità di acquistare questa Casa indipendente, perfetta per chi cerca una soluzione abitativa funzionale in posizione unica, centralissima e a pochissimi passi dal mare.

Informazioni immobile
Codice: san.bart375
Contratto: Vendita
Tipologia: Casa indipendente
Regione: Liguria
Provincia: Imperia
Comune: San Bartolomeo al Mare
Prezzo: € 375.000
Totale mq: 250 mq
Camere: 3
Bagni: 1
Locali: 5
Stato conservazione: Buono
Piano: Su due livelli
Piani totali: 2
Riscaldamento: Autonomo
Posto auto: Scoperto
Infissi: doppi
Appartamenti Totali: 3
Disponibile: Si
Esposizione: sud
Balconi: Presente
Terrazzo: Presente
Giardino: Privato
Distanza mare: 100 mt.
Cucina: Abitabile
Box: Doppio
Posizione: Centrale
Nelle vicinanze
Palestre
Centri Benessere
Campi da Calcio
Complessi Sportivi
Campi da Tennis
Piste Ciclabili
Parchi Giochi
Stazione Ferroviaria
Trasporti Pubblici
Asilo
Scuole Elementari
Scuole Medie
Scuole Superiori
Bar
Uffici postali
Centri commerciali
Uffici comunali

Mappa immobile

Ultimo aggiornamento 13-12-2025