Ricerca

2 locali in Vendita a Cervo

35 mq 2 Locali 1 Camere 1 Bagni
Codice: BILOCERVO! € 105.000

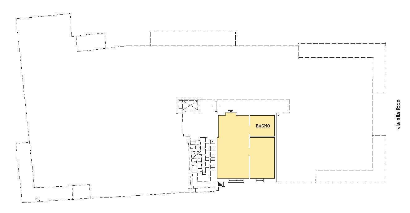
Cervo - Palazzina con ascensore al di sotto della Via Aurelia a soli venti metri dal mare. L'immobile, accatastato ad uso ufficio, si trova al primo piano ed è stato totalmente ristrutturato e rifinito con portoncino blindato, doppi vetri ed impianto di climatizzazione. Internamente è composto da ingresso su soggiorno con cucina a vista, camera da letto e bagno con box doccia. Tutti gli impianti sono autonomi.

Informazioni immobile
Codice: BILOCERVO!
Contratto: Vendita
Tipologia: 2 locali
Regione: Liguria
Provincia: Imperia
Comune: Cervo
Prezzo: € 105.000
Totale mq: 35 mq
Camere: 1
Bagni: 1
Locali: 2
Stato conservazione: Ristrutturato
Piano: Piano terra
Riscaldamento: Autonomo
Infissi: Doppi vetri
Stato attuale: Libero al rogito
Spese condominio: € 30
Disponibile: Si
Distanza mare: 30 mt.
Cucina: A vista
Posizione: Lungomare
Nelle vicinanze
Palestre
Centri Benessere
Campi da Calcio
Complessi Sportivi
Campi da Tennis
Piste Ciclabili
Parchi Giochi
Stazione Ferroviaria
Trasporti Pubblici
Asilo
Scuole Elementari
Scuole Medie
Scuole Superiori
Bar
Uffici postali
Centri commerciali
Uffici comunali

Mappa immobile

Ultimo aggiornamento 16-12-2025