Ricerca

3 locali in Vendita a Diano Marina

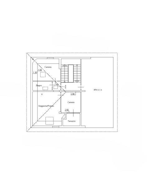
65 mq 3 Locali 2 Camere 1 Bagni

Classe energetica

G
Codice: Mansarda258 € 258.000

Diano Marina in Villa d'epoca a due passi dalle spiagge.
Ampio trilocale con splendida vista mare.
Internamente è caratterizzato da ingresso su disimpegno, zona giorno con cucina a vista, camera da letto matrimoniale con accesso al balcone vista mare,
seconda camera e bagno finestrato con box doccia.
Dalla proprietà si può raggiungere comodamente il lungomare tramite apposito accesso.
L'immobile è stato di recente ristrutturato totalmente.
Tutti gli impianti sono autonomi

Informazioni immobile
Codice: Mansarda258
Contratto: Vendita
Tipologia: 3 locali
Regione: Liguria
Provincia: Imperia
Comune: Diano Marina
Prezzo: € 258.000
Totale mq: 65 mq
Camere: 2
Bagni: 1
Locali: 3
Stato conservazione: Ristrutturato
Piano: Ultimo
Piani totali: 3
Riscaldamento: Autonomo
Infissi: Doppio Vetro / Legno
Stato attuale: Libero al rogito
Spese condominio: € 40
Disponibile: Si
Esposizione: SUD - EST
Balconi: Presente
Giardino: Comune
Distanza mare: 200 mt.
Cucina: A vista
Posizione: Centrale
Nelle vicinanze
Palestre
Centri Benessere
Campi da Calcio
Complessi Sportivi
Campi da Tennis
Piste Ciclabili
Parchi Giochi
Stazione Ferroviaria
Trasporti Pubblici
Asilo
Scuole Elementari
Scuole Medie
Scuole Superiori
Bar
Uffici postali
Centri commerciali
Uffici comunali

Mappa immobile

Ultimo aggiornamento 24-12-2025