Ricerca

2 locali in Vendita a Cervo

50 mq 2 Locali 1 Camere 1 Bagni

Classe energetica

G
Codice: bilocervo215 € 215.000

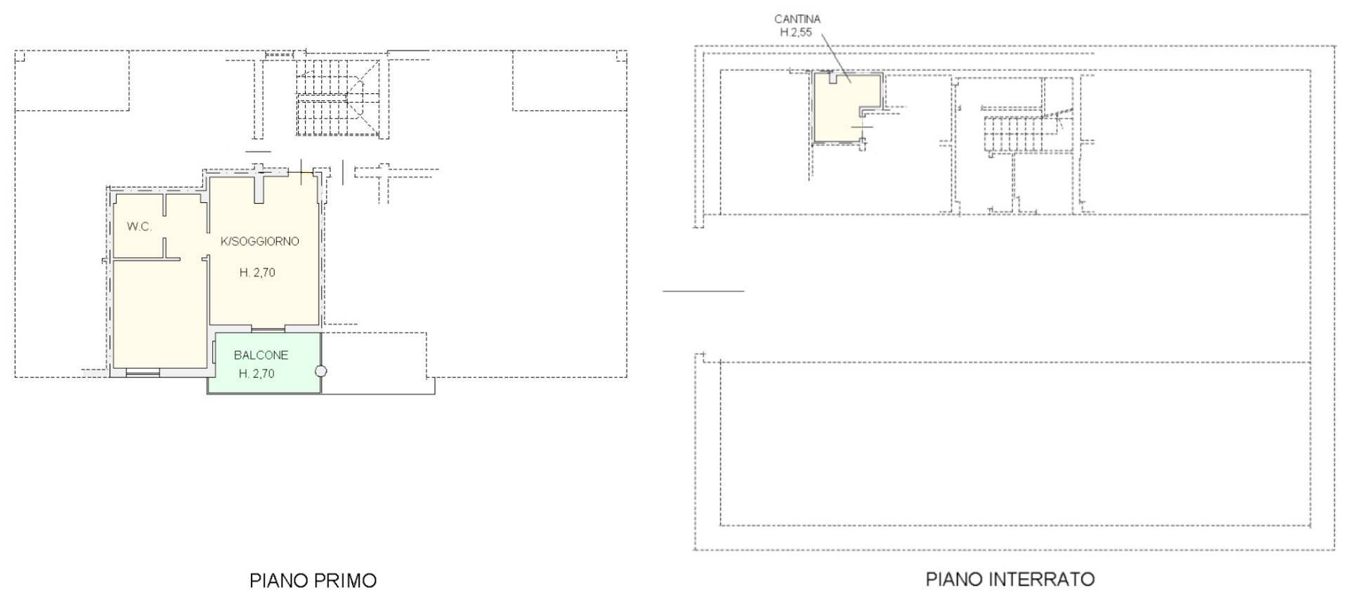
Cervo - Palazzina di recente costruzione in posizione tranquilla e silenziosa a pochi minuti dal centro. L'immobile si trova al primo piano con esposizione Sud.
Internamente è composto da ingresso su zona giorno avente sfogo sul balcone, cucina a vista, camera da letto matrimoniale e bagno con box doccia.
L'appartamento dotato di cappotto termico è rifinito con infissi doppi vetri e portoncino blindato di ingresso.
Tutti gli impianti sono autonomi e le spese condominiali sono contenute.
Completa la proprietà una comoda cantina.
Infine, grazie alla sua posizione strategica, l'immobile si trova a pochi passi dai principali servizi e dalle spiagge di Cervo, rendendolo perfetto sia come abitazione principale che come investimento per affitti turistici.

Informazioni immobile
Codice: bilocervo215
Contratto: Vendita
Tipologia: 2 locali
Regione: Liguria
Provincia: Imperia
Comune: Cervo
Prezzo: € 215.000
Totale mq: 50 mq
Camere: 1
Bagni: 1
Locali: 2
Stato conservazione: Ristrutturato
Piano: 1
Piani totali: 2
Riscaldamento: Autonomo
Infissi: Doppio vetro / PVC
Età costruzione: 2018
Stato attuale: Libero al rogito
Spese condominio: € 40
Disponibile: Si
Esposizione: Sud
Balconi: Presente
Distanza mare: 500 mt.
Cucina: A vista
Posizione: Semicentrale
Nelle vicinanze
Palestre
Centri Benessere
Campi da Calcio
Complessi Sportivi
Campi da Tennis
Piste Ciclabili
Parchi Giochi
Stazione Ferroviaria
Trasporti Pubblici
Asilo
Scuole Elementari
Scuole Medie
Scuole Superiori
Bar
Uffici postali
Centri commerciali
Uffici comunali

Mappa immobile

Ultimo aggiornamento 15-01-2026