Ricerca

2 locali in Vendita a Cervo

Zona: Cervo - Capo Mimosa

50 mq 2 Locali 1 Camere 1 Bagni

Classe energetica

G
Codice: vista139 € 139.000

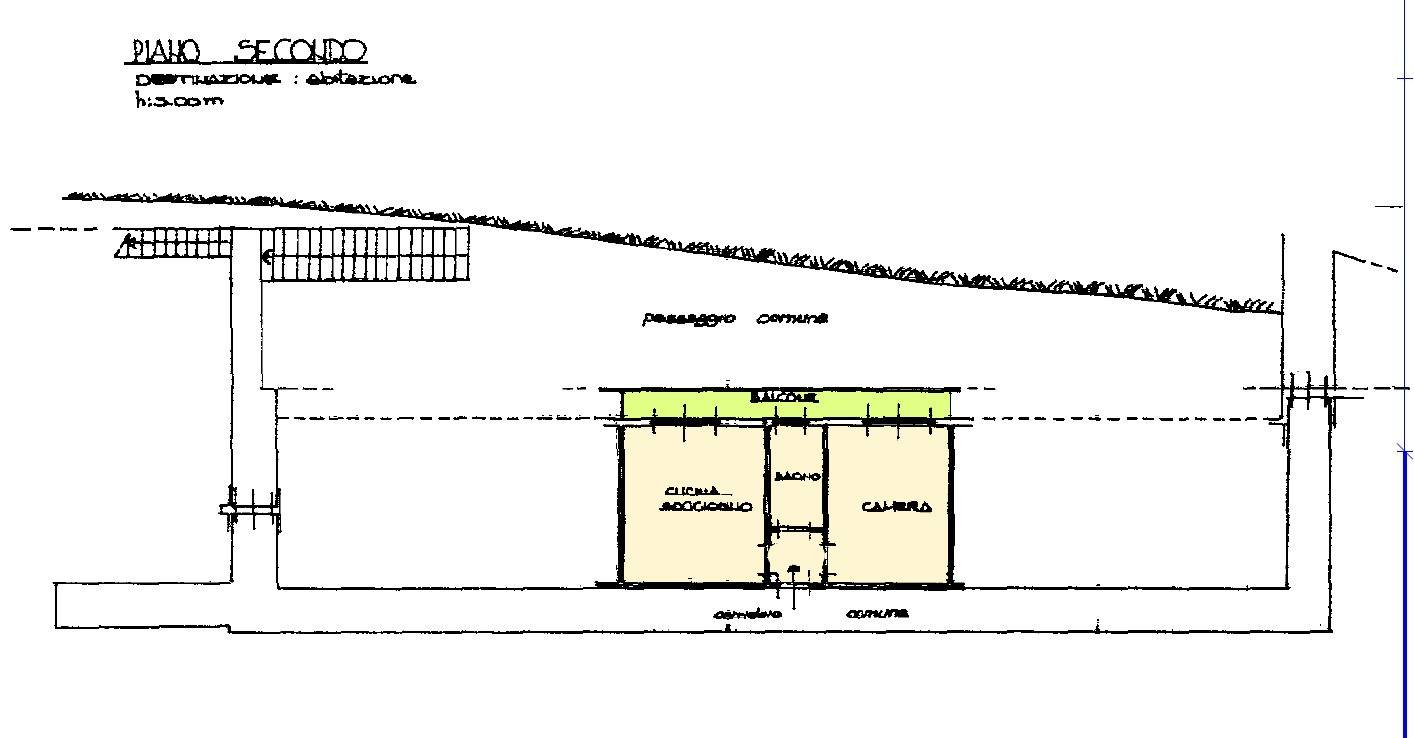
Cervo, Capomimosa. Appartamento sito al secondo ed ultimo piano di palazzina ben curata a cinquanta metri dal mare. L'immobile è caratterizzato da stanze ampie e luminose. Internamente è composto da ingresso su disimpegno, soggiorno con cucina a vista avente sfogo su ampio balcone, camera da letto matrimoniale e bagno finestrato.
Completano l'immobile una porzione di lastrico solare fronte mare di 50 metri quadrati, un posto auto, entrambi ad uso esclusivo dell'appartamento e una cantina.

Informazioni immobile
Codice: vista139
Contratto: Vendita
Tipologia: 2 locali
Regione: Liguria
Provincia: Imperia
Comune: Cervo
Zona: Cervo - Capo Mimosa
Prezzo: € 139.000
Totale mq: 50 mq
Camere: 1
Bagni: 1
Locali: 2
Stato conservazione: Buono
Piano: 2
Piani totali: 2
Riscaldamento: Autonomo
Posto auto: Scoperto
Infissi: Doppi Vetri / PVC
Stato attuale: Libero al rogito
Spese condominio: € 40
Disponibile: Si
Balconi: Presente
Distanza mare: 50 mt.
Cucina: A vista
Posizione: Semicentrale
Nelle vicinanze
Palestre
Centri Benessere
Campi da Calcio
Complessi Sportivi
Campi da Tennis
Piste Ciclabili
Parchi Giochi
Stazione Ferroviaria
Trasporti Pubblici
Asilo
Scuole Elementari
Scuole Medie
Scuole Superiori
Bar
Uffici postali
Centri commerciali
Uffici comunali

Mappa immobile

Ultimo aggiornamento 25-03-2026