Ricerca

6 locali in Vendita a Andora

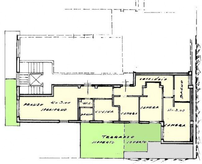
110 mq 6 Locali 3 Camere 2 Bagni

Classe energetica

G
Codice: QuadriCapoMele445 € 445.000

Andora - Nel contesto di Capo Mele, a circa 1 km dalle spiagge e 2 km da Laigueglia,

Ampio e luminoso appartamento dal panorama mozzafiato, sito al secondo piano di un edificio dotato di ascensore con accesso diretto a piscina e spiaggia sottostante.

L'immobile è composto da ampio soggiorno, cucina abitabile, tre camere da letto di cui una matrimoniale, bagno principale con doccia e secondo bagno finestrato con box doccia
Ampio terrazzo e balcone con vista panoramica sul mare, ideali per godersi momenti di relax all'aria aperta.

Tutti gli impianti sono autonomi.

L'esposizione a sud-est garantisce una piacevole luminosità all'interno dell'abitazione.

Le spese condominiali ammontano a circa 200 euro al mese

Completano la proprietà due posti auto scoperti

Soluzione perfetta per chi desidera una casa per le vacanze spaziosa e pronta all'uso in un contesto esclusivo.

Informazioni immobile
Codice: QuadriCapoMele445
Contratto: Vendita
Tipologia: 6 locali
Regione: Liguria
Provincia: Savona
Comune: Andora
Prezzo: € 445.000
Totale mq: 110 mq
Camere: 3
Bagni: 2
Locali: 6
Stato conservazione: Buono
Piano: 2
Piani totali: 5
Riscaldamento: Autonomo
Posto auto: Scoperto
Ascensore: Si
Infissi: pvc
Età costruzione: 1980
Stato attuale: Libero al rogito
Spese condominio: € 200
Disponibile: Si
Esposizione: sud est
Balconi: Presente, 5 mq
Terrazzo: Presente, 40 mq
Distanza mare: 30 mt.
Cucina: Abitabile
Posizione: Lungomare
Nelle vicinanze
Palestre
Centri Benessere
Campi da Calcio
Complessi Sportivi
Campi da Tennis
Piste Ciclabili
Parchi Giochi
Stazione Ferroviaria
Trasporti Pubblici
Asilo
Scuole Elementari
Scuole Medie
Scuole Superiori
Bar
Uffici postali
Centri commerciali
Uffici comunali

Mappa immobile

Ultimo aggiornamento 27-03-2026