Ricerca

Villa in Vendita a Diano Marina

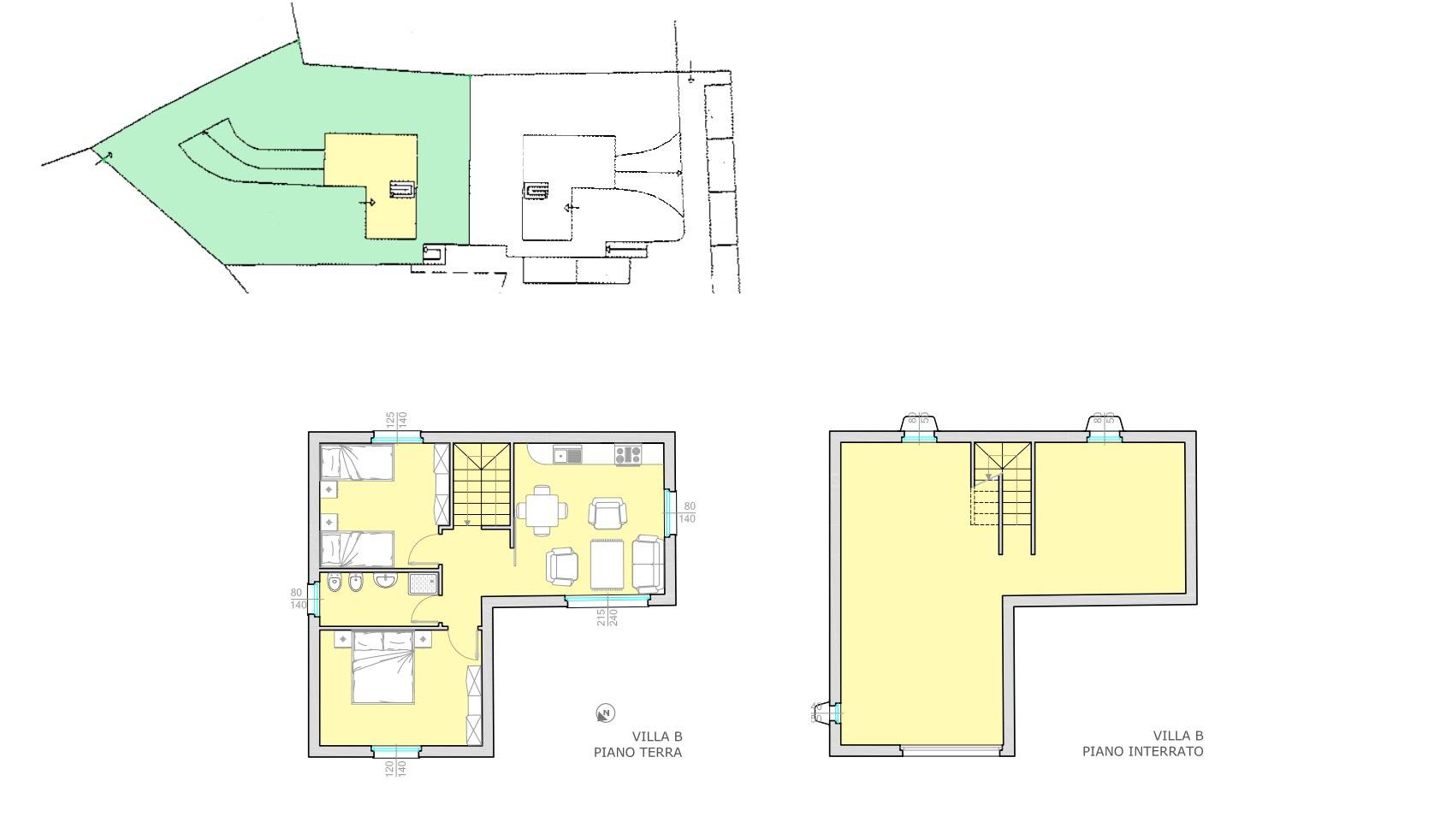
105 mq 3 Locali 2 Camere 1 Bagni

Classe energetica

NA - Non Applicabile
Codice: VillaCastello02 € 465.000

Diano Marina, zona tranquilla e panoramica a due chilometri dal mare.

Villetta Indipendente di Nuova Costruzione.

In contesto residenziale e riservato, proponiamo in Vendita un villetta indipendente libera su quattro lati, caratterizzata da un' ottima esposizione, vista aperta sul mare e sulle colline, grandi finestre in ogni locale ed ampi spazi esterni privati.

L'immobile sarà venduto allo stato grezzo avanzato: risulta ultimata struttura portante e rivestimenti esterni, impianti elettrici ed idraulici , mentre le finiture interne sono in buona parte da realizzare, offrendo così la possibilità di personalizzare completamente distribuzione, materiali e soluzioni tecnologiche secondo le proprie esigenze.

Superficie catastale: 105 mq
Giardino privato di circa 400 mq
Soluzione indipendente
Grande box auto e taverna sottostanti
Richiesta: € 465.000


La posizione dominante garantisce luminosità, privacy e una vista piacevole ed aperta, che abbraccia il borgo di Diano Castello, l'orizzonte e gli uliveti circostanti.

Soluzione ideale per chi desidera una casa indipendente di nuova realizzazione da completare e personalizzare, situata in un quadro pittoresco ma comodo a tutti i servizi.

Informazioni immobile
Codice: VillaCastello02
Contratto: Vendita
Tipologia: Villa
Regione: Liguria
Provincia: Imperia
Comune: Diano Marina
Prezzo: € 465.000
Totale mq: 105 mq
Camere: 2
Bagni: 1
Locali: 3
Stato conservazione: Grezzo
Piano: Su due livelli
Riscaldamento: Assente
Età costruzione: 2025
Stato attuale: In costruzione
Disponibile: Si
Terrazzo: Presente
Giardino: Privato, 400 mq
Distanza mare: 2.300 mt.
Box: Doppio
Posizione: Centrale
Nelle vicinanze
Palestre
Centri Benessere
Campi da Calcio
Complessi Sportivi
Campi da Tennis
Piste Ciclabili
Parchi Giochi
Stazione Ferroviaria
Trasporti Pubblici
Asilo
Scuole Elementari
Scuole Medie
Scuole Superiori
Bar
Uffici postali
Centri commerciali
Uffici comunali

Mappa immobile

Ultimo aggiornamento 02-04-2026