Ricerca

Monolocale in Vendita a San Bartolomeo al Mare

25 mq 1 Locali 1 Camere 1 Bagni

Classe energetica

G
Codice: Mono138 € 138.000

San Bartolomeo al Mare in complesso ben curato a pochi passi dal lungomare e dalle spiagge.

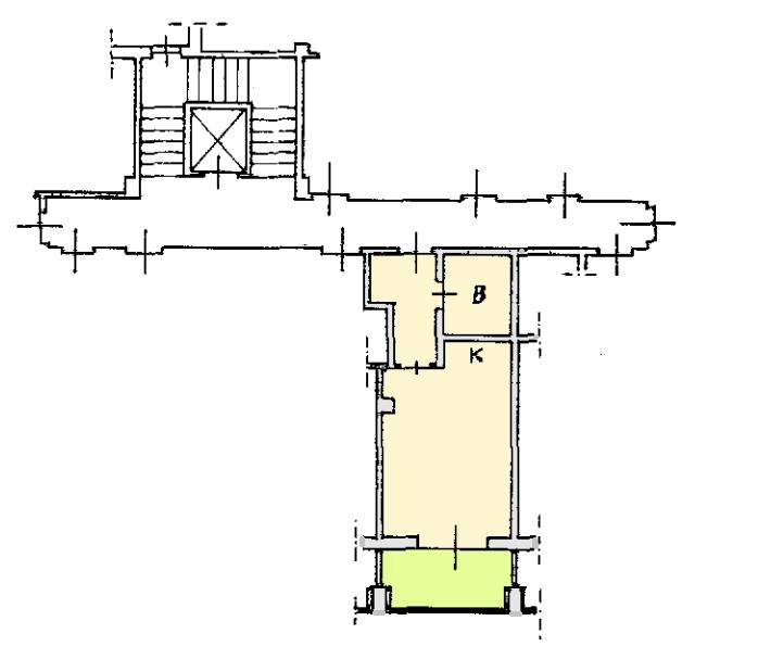
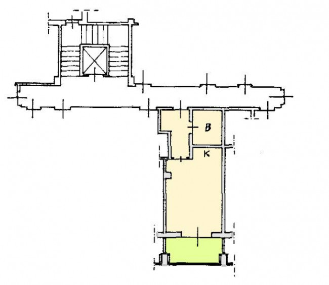
Luminoso Monolocale di 25 metri quadrati con ampio terrazzo.

All'interno è caratterizzato da ingresso su zona giorno/notte con angolo cottura e bagno con box doccia.

Tutti gli impianti sono autonomi.

Le spese condominiali ammontano a soli 60 euro al mese e comprendono la pulizia e la manutenzione delle parti comuni e dell'ascensore.

Inoltre, le spiagge e il lungomare di San Bartolomeo al Mare si trovano a pochi minuti di distanza, ideali per chi ama trascorrere il tempo libero al mare.

In sintesi, questo Monolocale in Vendita a San Bartolomeo al Mare è un'ottima soluzione per chi cerca un'abitazione pratica, funzionale e a buon prezzo, perfetta per chi desidera una casa confortevole in una zona tranquilla ma ben collegata.

Informazioni immobile
Codice: Mono138
Contratto: Vendita
Tipologia: Monolocale
Regione: Liguria
Provincia: Imperia
Comune: San Bartolomeo al Mare
Prezzo: € 138.000
Totale mq: 25 mq
Camere: 1
Bagni: 1
Locali: 1
Stato conservazione: Buono
Piano: 2
Piani totali: 5
Riscaldamento: Autonomo
Ascensore: Si
Infissi: Alluminio / Vetro
Età costruzione: 1980
Stato attuale: Libero al rogito
Spese condominio: € 60
Disponibile: Si
Balconi: Presente
Distanza mare: 30 mt.
Cucina: A vista
Posizione: Lungomare
Nelle vicinanze
Palestre
Centri Benessere
Campi da Calcio
Complessi Sportivi
Campi da Tennis
Piste Ciclabili
Parchi Giochi
Stazione Ferroviaria
Trasporti Pubblici
Asilo
Scuole Elementari
Scuole Medie
Scuole Superiori
Bar
Uffici postali
Centri commerciali
Uffici comunali

Mappa immobile

Ultimo aggiornamento 02-04-2026