Ricerca

4 locali in Vendita a Diano Marina

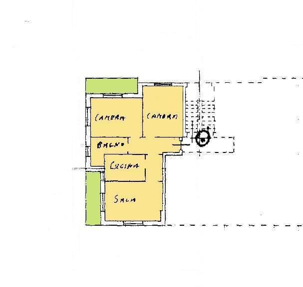
80 mq 4 Locali 2 Camere 1 Bagni

Classe energetica

G
Codice: QuadriArentino98 € 98.000

Diano Arentino - Nel tipico primo entroterra ligure, a pochi minuti dal mare. L'immobile si trova al secondo piano di una palazzina con vista mare ed è caratterizzato da una doppia esposizione e da grandi stanze molto luminose. Internamente è composto da ingresso, cucina abitabile, soggiorno con balconata affacciata verso il mare, due camere da letto matrimoniali di cui una con balcone e bagno finestrato con box doccia di recente ristrutturazione.
Possibilità di acquisto di un box auto di 26 metriquadrati sottostante l'immobile con accesso diretto al condominio.
Tutti gli impianti sono autonomi con basse spese di gestione condominiali.

Informazioni immobile
Codice: QuadriArentino98
Contratto: Vendita
Tipologia: 4 locali
Regione: Liguria
Provincia: Imperia
Comune: Diano Marina
Prezzo: € 98.000
Totale mq: 80 mq
Camere: 2
Bagni: 1
Locali: 4
Stato conservazione: Ottimo
Piano: 1
Piani totali: Si
Riscaldamento: Autonomo
Posto auto: Scoperto
Infissi: Alluminio / Doppi Vetri
Età costruzione: 1970
Stato attuale: Libero al rogito
Spese condominio: € 70
Disponibile: Si
Esposizione: Sud - Ovest v
Balconi: Presente
Terrazzo: Presente
Giardino: Privato
Distanza mare: 6.000 mt.
Cucina: Abitabile
Box: Doppio, 30 mq
Nelle vicinanze
Palestre
Centri Benessere
Campi da Calcio
Complessi Sportivi
Campi da Tennis
Piste Ciclabili
Parchi Giochi
Stazione Ferroviaria
Trasporti Pubblici
Asilo
Scuole Elementari
Scuole Medie
Scuole Superiori
Bar
Uffici postali
Centri commerciali
Uffici comunali

Mappa immobile

Ultimo aggiornamento 08-04-2026