Ricerca

3 locali in Vendita a Diano Marina

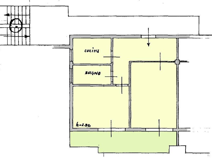
50 mq 3 Locali 1 Camere 1 Bagni

Classe energetica

D
Codice: DianoPlage218. € 218.000

Diano Marina, zona esclusiva, in pieno centro e a soli 50 metri dal mare.

Grande bilocale con cucina indipendente e terrazza abitabile esposta a sud.

L'appartamento è composto da ingresso su disimpegno, soggiorno, cucina semi-abitabile, camera da letto matrimoniale, bagno finestrato con box doccia ed ampia balconata con scorcio di vista mare.

L'appartamento è completamente arredato, pronto per essere abitato.

Tutti gli impianti sono autonomi.

La palazzina è dotata di ascensore.

La sua esposizione a sud garantisce luminosità naturale durante tutto il giorno.

Ideale per chi desidera una soluzione pronta all'uso, a due passi dalle spiagge e dal centro della città.

Informazioni immobile
Codice: DianoPlage218.
Contratto: Vendita
Tipologia: 3 locali
Regione: Liguria
Provincia: Imperia
Comune: Diano Marina
Prezzo: € 218.000
Totale mq: 50 mq
Camere: 1
Bagni: 1
Locali: 3
Stato conservazione: Buono
Piano: 1
Piani totali: 4
Riscaldamento: Autonomo
Ascensore: Si
Infissi: DOPPI VETRO
Età costruzione: 1970
Stato attuale: Libero al rogito
Spese condominio: € 50
Disponibile: Si
Esposizione: SUD
Balconi: Presente
Terrazzo: Presente
Distanza mare: 50 mt.
Cucina: Cucinotto
Posizione: Lungomare
Nelle vicinanze
Palestre
Centri Benessere
Campi da Calcio
Complessi Sportivi
Campi da Tennis
Piste Ciclabili
Parchi Giochi
Stazione Ferroviaria
Trasporti Pubblici
Asilo
Scuole Elementari
Scuole Medie
Scuole Superiori
Bar
Uffici postali
Centri commerciali
Uffici comunali

Mappa immobile

Ultimo aggiornamento 19-12-2025